Nel Piano di Zona Anagnina 1, che si attesta a ridosso del Grande Raccordo Anulare nel quadrante sud est di Roma tra la Tuscolana e l’Anagnina, la cooperativa edilizia Delle Statue prevede la realizzazione di tre edifici per complessivi 58 alloggi di edilizia economico-popolare.
Tre edifici (16 alloggi pal. A e B - 14 alloggi pal. C) per un totale di 10000 mc.




Due palazzine gemelle (Edifici A e B) dalle forme sinuose, che si sviluppano per quattro piani, derivano la loro morfologia da una sorta di “upgrade” delle classiche tipologie “167” verso i modelli di edilizia borghese; mentre l’edificio in linea (Edificio C), costituito da cinque piani di cui una piastra commerciale al piano terra, raccoglie le tipologie più tradizionali dai tagli più piccoli.
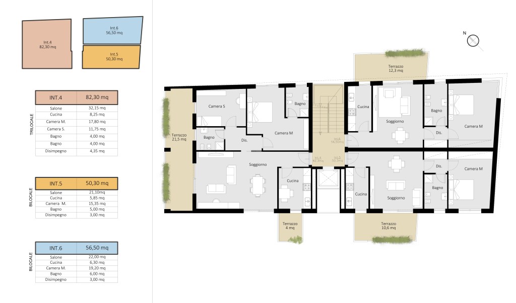
EDIFICIO A = EDIFICIO B









EDIFICIO C









Buonasera
Vorrei avere informazioni in merito alla disponibilità di n°2 appartamenti trilocali all’interno del piano di Anagnina 1
Rimango in attesa di un vostro gentile riscontro
Saluti
"Mi piace""Mi piace"
Salve.
Mi scuso con l’enorme ritardo con cui rispondo ma ci sono stati problemi al server.
Per qualsiasi informazione pùò contattare l’ufficio al num. 06 5224 6194 o contattare,
anche via WhatsApp, la segreteria al cell. 328 8680773.
Un cordiale saluto
"Mi piace""Mi piace"